
Die Gemeinde 82299 Türkenfeld verkauft an Sie im Einheimischen Modell ein Grundstück im Neubaugebiet Saliterstraße Nord.

Beschreibung des Neubauangebotes
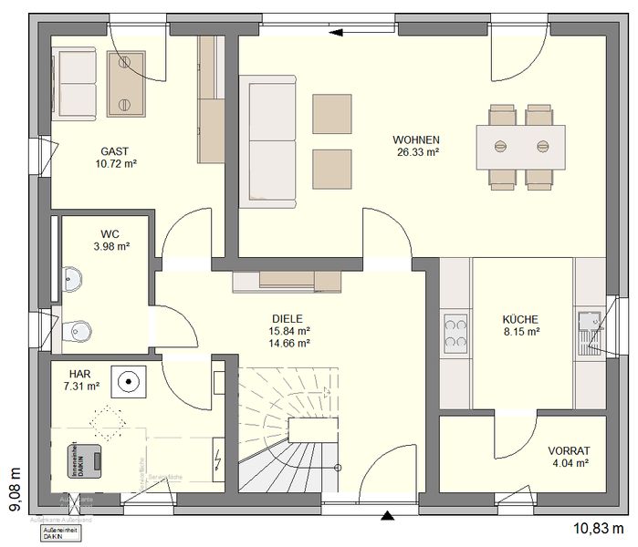
Herstellung des abgebildeten und beschriebenen Hauses durch Heinz von Heiden Massivhäuser.
Außenmaße: 10,83 m x 9,08 m.
147 m² Wohnfläche. 6 Zimmer, Küche + Speisekammer, Bad, Gäste-WC, Diele, Flur, Technikraum.
Herstellungspreis Haus + Eigenstromanlage = 417.800 €
Für das Haus erhalten Sie eine Festpreis- und Bauzeitgarantie sowie den Bauherren-Schutzbrief mit allen benötigten Versicherungen.
Ausstattung des Neubauangebotes
Komplette Herstellung des Hauses durch Heinz von Heiden Massivhäuser.
WU-Bodenplatte auf gedämmten Fundamenten gelagert. Erd- und Obergeschoss aus 42,5 cm Poroton-Außenwänden, gedämmt + Edelaußenputz + glatter Innenputz. Poroton-Ziegelinnenwände, beidseitig glatt verputzt. Toller Schallschutz von Raum zu Raum.
25° Satteldachkonstruktion aus Qualitätsholz und mit Braas-Dachsteinen eingedeckt.
10 cm Fußbodendämmung mit Fußbodenheizung im Erd- und Obergeschoss.
Farbige Kunststofffenster mit 3-facher Wärmeschutzverglasung. Elektrische Alu-Rollläden. Farbige Hauseingangstür.
Beheizung und Warmwasserversorgung mittels Luft-Wasser-Wärmepumpe. Einbau einer zentralen, mehrstufig regulierbaren Wohnraumlüftung.
Bad und WC sind gefliest und ausgestattet mit Sanitärelementen wie in den Grundrissen abgebildet. Weißlack Holzinnentüren. Moderne Holzinnentreppe. Komfort-Elektroinstallation nach VDE- und DIN- Vorschriften.
Lage und Infrastruktur zum Neubauangebot
Der Bauplatz befindet sich im Baugebiet Saliterstraße Nord. Im Ort befinden sich die Grund- u. Mittelschule, zwei Kindergärten mit Krippe, EDEKA, die Römer-Apotheke, die Deutsche-Postfiliale, der S-Bahnhof, die BUS-Linie 807 und mehrere Ärzte.
Kontakt
Peter Ring oder Katrin Reineck freuen sich auf Ihren Anruf!
Tel. 01522 – 548 1616 oder 08246 – 96 94 220 oder info@hausvertrieb-bayern.de.
10.11.2025







