Planen Sie gemeinsam mit Ihren Freunden oder mit den Eltern oder mit Ihren Kindern dieses 9-Zimmer-Zweifamilienhaus auf Ihrem Grundstück zu bauen? Oder möchten Sie einen Wohnbereich vermieten, weil dadurch die Finanzierungskosten des Projektes optimaler werden?

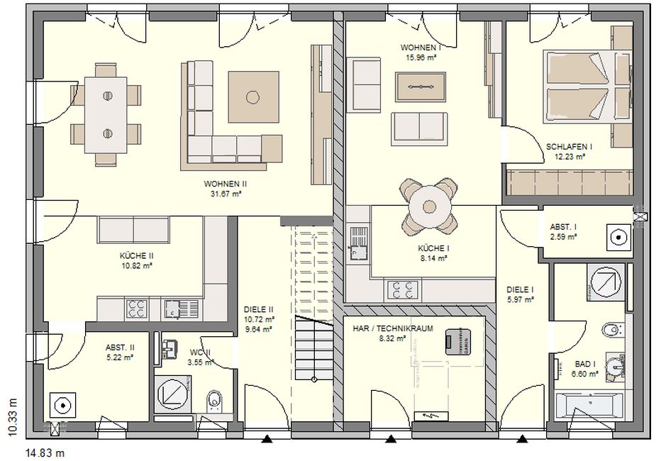
Gesamtwohnfläche beider Wohnungen = 240,02 qm.
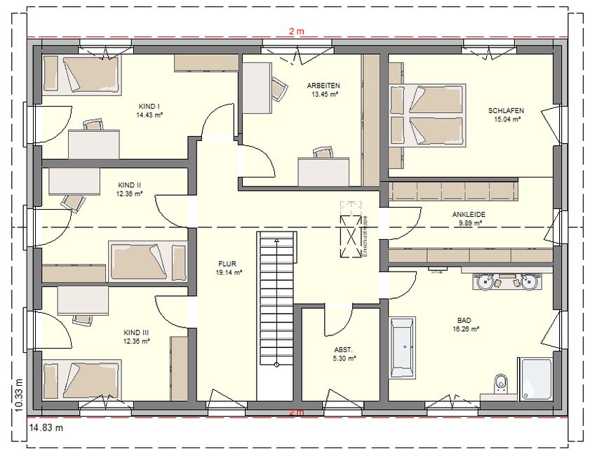
Hauptwohnung: Erd- und Obergeschoss: 184 qm Wohn- u. Nutzfläche. 6 Zimmer + Ankleideraum, 1 Abstellraum, Küche, Bad, Duschbad im Erdgeschoss, Diele, Flur. 1/2 Mitnutzung Haustechnikraum.
Erdgeschoss-Mietwohnung: 56 qm Wohn- u. Nutzfläche. 2 Zimmer, Abstellraum, Küche, Bad, Diele. 1/2 Mitnutzung Haustechnikraum.
Außenmaße des Hauses: 14,83 m x 10,33 m.
Der Herstellungspreis beträgt = 577.800 € inkl. 19% MwSt.
Der Herstellungspreis enthält auch diese Leistungen: Alle Architektenleistungen, Bau- und Entwässerungsantrag, Bodengutachten, Bauleitung, Baustellen-WC, Blower-Door-Test, statische Berechnung des Hauses, Arbeits- und Gesundheitsschutzdokumentation. Alle Versicherungen: Feuerversicherung. Bauherrenhaftpflicht- und Bauwesenversicherung. Baufertigstellungsversicherung.
Für die Verwirklichung Ihres Bauprojektes erhalten Sie kostenfrei eine Festpreis- und Bauzeitgarantie. Sicherheit von Anfang an!
Das Traditionsunternehmen Heinz von Heiden Massivhäuser ist seit 1931 tätig und baut in allen sechzehn Bundesländern.
Ausstattungsmöglichkeiten für das Zweifamilienhaus 881
Unsere Bauweise
Bau-Beschreibung für das Zweifamilienhaus 881
Das abgebildete und beschriebene 9-Zimmer-Zweifamilienhaus 881 mit großer Eigenstromanlage wird durch Heinz von Heiden Massivhäuser auf Ihrem Grundstück errichtet.
Herstellung des tragfähigen Unterbaus für das Haus. Die Stahlbetonbodenplatte ist wasserundurchlässig und wird auf gedämmten Fundamenten gelagert.
Die Außenwände bestehen aus monolithischem Mauerwerk, das gedämmt ist und einen hervorragenden Schallschutz gegen Außenlärm bietet. Die Fassade erhält einen Edelaußenputz, bei dem Schmutz kaum Chancen hat und dieser Putz ist stark wasserabweisend. Glatt verputzte massive Innenwände im EG + OG, wodurch die Malerarbeiten gut vorbereitet sind. Die massiven Innenwände bieten den Bewohnern einen sehr guten Schallschutz von Raum zu Raum.
30° Satteldachkonstruktion aus Qualitätsholz und mit Braas-Dachsteinen eingedeckt.
Unsere Fachfirmen führen die komplette Sanitär-, Heizungs- und Elektroinstallation im Haus aus.
Wärmepumpe + Fußbodenheizung + Eigenstromanlage + Komfortpaket Elektroausstattung.
Gedämmte Fußböden im Erd- und Obergeschoss mit Fußbodenheizung.
Weiße Kunststofffenster mit 3-facher Wärmeschutzverglasung. Alle Fenster erhalten elektrische Alu-Rollläden, wodurch per Knopfdruck Hitze-, Kälte- und Sichtschutz einstellbar sind. Moderne Hauseingangstüren.
Beheizung und Warmwasserversorgung mittels Luft-Wasser-Wärmepumpe. Damit die beim Bewohnen des Hauses erzeugte Feuchtigkeit dauerhaft und zuverlässig nach Außen abgeleitet wird, erhält Ihr Haus eine mehrstufig regelbare zentrale Wohnraumlüftung, die geräuschlos und zuverlässig für immer frische Luft in allen Räumen des Hauses sorgt und Ihr Wohneigentum vor Feuchteschäden schützt.
Die Bäder und das Gäste-WC sind mit Schöner Wohnen Fliesen (Wand- und Bodenfliesen) ausgestattet und erhalten bodengleiche Duschen, Badewannen, Waschtische, WC´s, Handtuchheizkörper. Wählen Sie aus einem großen Angebot an Sanitärausstattungen und Fliesen aus.
Weißlack Holzinnentüren. Eine moderne Holztreppe führt in die Hauptwohnung im Obergeschoss.
Die malermäßige Behandlung der inneren Wand- u. Deckenflächen und Verlegung der Bodenbeläge ist in Eigenleistung oder per Zusatzauftrag vorzunehmen.
Das ist unser persönlicher Service für Ihr Bauprojekt:
Seit 1995 begleiten wir unsere Baukundschaft bei der Auswahl eines Heinz von Heiden Massivhauses, fertigen für Sie Ihren Wunschgrundriss an und fügen die von Ihnen gewünschten architektonischen Zusätze (Fassadenfarbe, Erker, Zwerchgiebel, Gaube, Balkon, Dachfenster usw.) dem zeichnerischen Hausentwurf hinzu.
Nachdem Ihr Wunschhaus entwickelt ist, unterstützen wir Sie bei der Ermittlung der Gesamtkosten Ihres Bauprojektes. Wir begleiten die Fertigstellung Ihres Traumhauses bis zu Ihrem Einzug und stehen Ihnen jederzeit mit Rat und Tat zur Seite.
Unsere langjährigen Kooperationspartner bieten Ihnen bei Bedarf den Aufbau von Garagen, Carports, Pflasterung von Flächen, Baumfällung, Abriss- und Entsorgung, Verlegung von Rollrasen, Einzäunung des Grundstücks usw. an.
Hat dieses Haus Ihr Interesse geweckt und wünschen Sie Informationen darüber?
Dipl.-Bauing. Peter Ring & Katrin Reineck freuen sich auf Ihren Anruf oder eine Mail.
info@hausvertrieb-bayern.de
Tel. 08246 – 96 94 220 oder 01522 – 548 1616
Optionen für das Zweifamilienhaus 881
Wasserdichter Betonkeller in gewünschter Nutzungsart. Vergrößerung oder Verkleinerung des Hauses oder Änderung der Raumaufteilung. Eine große Auswahl an Ausstattungen und Sanitärartikeln steht zur Verfügung.
24.01.2026












































































