Diese Stadtvilla mit 10 Modulen Eigenstromanlage bietet einer Familie mit 3 Kindern ein bezahlbares Eigenheim und wird durch Heinz von Heiden Massivhäuser auf Ihrem Bauplatz errichtet.

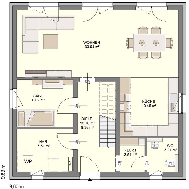
149 qm DIN-Wohnfläche. 6 Zimmer, Küche, Bad, Gäste-WC, Diele, Flur, Technik- u. Abstellraum.
Außenmaße: 9,83 m x 9,83 m.
Der Herstellungspreis beträgt = 333.800 € inkl. 19% MwSt.
Der Herstellungspreis enthält auch diese Leistungen: Alle Architektenleistungen, Bau- und Entwässerungsantrag, Bodengutachten, Bauleitung, Baustellen-WC, Blower-Door-Test, statische Berechnung des Hauses, Arbeits- und Gesundheitsschutzdokumentation. Alle Versicherungen: Feuerversicherung. Bauherrenhaftpflicht- und Bauwesenversicherung. Baufertigstellungsversicherung.
Für die Verwirklichung Ihres Bauprojektes erhalten Sie kostenfrei eine Festpreis- und Bauzeitgarantie. Sicherheit von Anfang an!
Das Traditionsunternehmen Heinz von Heiden Massivhäuser ist seit 1931 tätig und baut in allen sechzehn Bundesländern.
Ausstattungsmöglichkeiten für die Stadtvilla V 151
Unsere Bauweise
Bau-Beschreibung für die Stadtvilla V 151
Die abgebildete und beschriebene Stadtvilla V 151 mit großer Eigenstromanlage wird durch Heinz von Heiden Massivhäuser auf Ihrem Grundstück errichtet.
Herstellung des tragfähigen Unterbaus für das Haus. Die Stahlbetonbodenplatte ist wasserundurchlässig und wird auf gedämmten Fundamenten gelagert.
Die Außenwände bestehen aus monolithischem Mauerwerk, das gedämmt ist und einen hervorragenden Schallschutz gegen Außenlärm bietet. Die Fassade erhält einen weißen Edelaußenputz, bei dem Schmutz kaum Chancen hat und dieser Putz ist stark wasserabweisend. Glatt verputzte massive Innenwände im EG + OG, wodurch die Malerarbeiten gut vorbereitet sind. Die massiven Innenwände bieten den Bewohnern einen sehr guten Schallschutz von Raum zu Raum.
25° Zeltdachkonstruktion aus Qualitätsholz und mit Braas-Dachsteinen eingedeckt.
Unsere Fachfirmen führen die komplette Sanitär-, Heizungs- und Elektroinstallation im Haus aus.
Wärmepumpe + Fußbodenheizung + Eigenstromanlage + Komfortpaket Elektroausstattung.
Gedämmte Fußböden im Erd- und Obergeschoss mit Fußbodenheizung.
Farbige Kunststofffenster mit 3-facher Wärmeschutzverglasung. Alle Fenster erhalten elektrische Alu-Rollläden, wodurch per Knopfdruck Hitze-, Kälte- und Sichtschutz einstellbar sind. Farbige Hauseingangstür.
Beheizung und Warmwasserversorgung mittels Luft-Wasser-Wärmepumpe. Damit die beim Bewohnen des Hauses erzeugte Feuchtigkeit dauerhaft und zuverlässig nach Außen abgeleitet wird, erhält Ihr Haus eine mehrstufig regelbare zentrale Wohnraumlüftung, die geräuschlos und zuverlässig für immer frische Luft in allen Räumen des Hauses sorgt und Ihr Wohneigentum vor Feuchteschäden schützt.
Das Bad und das Gäste-WC wird mit Schöner Wohnen Fliesen (Wand- und Bodenfliesen) ausgestattet und erhält eine bodengleiche Dusche, Badewanne, Waschtisch, WC, Handtuchheizkörper. Wählen Sie aus einem großen Angebot an Sanitärausstattungen und Fliesen aus.
Weißlack Holzinnentüren und eine moderne Holzinnentreppe sind kalkuliert.
Die malermäßige Behandlung der inneren Wand- u. Deckenflächen und Verlegung der Bodenbeläge ist in Eigenleistung oder per Zusatzauftrag vorzunehmen.
Das ist unser persönlicher Service für Ihr Bauprojekt:
Seit 1995 begleiten wir unsere Baukundschaft bei der Auswahl eines Heinz von Heiden Massivhauses, fertigen für Sie Ihren Wunschgrundriss an und fügen die von Ihnen gewünschten architektonischen Zusätze dem zeichnerischen Hausentwurf hinzu.
Nachdem Ihr Wunschhaus entwickelt ist, unterstützen wir Sie bei der Ermittlung der Gesamtkosten Ihres Bauprojektes. Wir begleiten die Fertigstellung Ihres Traumhauses bis zu Ihrem Einzug und stehen Ihnen jederzeit mit Rat und Tat zur Seite.
Unsere langjährigen Kooperationspartner bieten Ihnen bei Bedarf den Aufbau von Garagen, Carports, Pflasterung von Flächen, Baumfällung, Abriss- und Entsorgung, Verlegung von Rollrasen, Einzäunung des Grundstücks usw. an.
Hat dieses Haus Ihr Interesse geweckt und wünschen Sie Informationen darüber?
Dipl.-Bauing. Peter Ring & Katrin Reineck freuen sich auf Ihren Anruf oder eine Mail.
info@hausvertrieb-bayern.de
Tel. 08246 – 96 94 220 oder 01522 – 548 1616
Optionen für die Stadtvilla V 151
Wasserdichter Betonkeller in gewünschter Nutzungsart. Eine große Auswahl an Ausstattungen steht Ihnen zur Verfügung.
14.01.2026












































































