
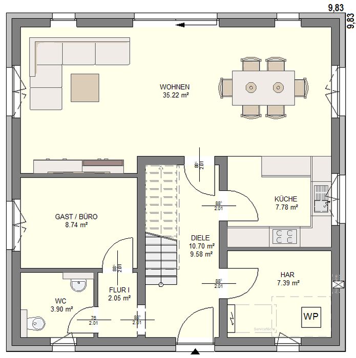
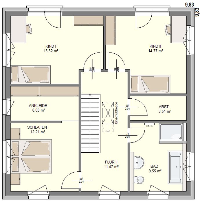
Für die abgebildete und beschriebene Stadtvilla mit Bodenbelägen in allen Räumen wurde der Angebotspreis kalkuliert.
Heinz von Heiden Massivhäuser errichtet diese Stadtvilla auf Ihrem Grundstück.

149 qm DIN-Wohnfläche. 5 Zimmer + Ankleidezimmer, Küche, Bad, Gäste-WC, Diele, Flur, Technik- u. Abstellraum.
Außenmaße: 9,83 m x 9,83 m.
Der Herstellungspreis beträgt = 397.700 € inkl. 19% MwSt.
Der Herstellungspreis enthält auch diese Leistungen: Alle Architektenleistungen, Bau- und Entwässerungsantrag, Bodengutachten, Bauleitung, Baustellen-WC, Blower-Door-Test, statische Berechnung des Hauses, Arbeits- und Gesundheitsschutzdokumentation. Alle Versicherungen: Feuerversicherung. Bauherrenhaftpflicht- und Bauwesenversicherung. Baufertigstellungsversicherung.
Für die Verwirklichung Ihres Bauprojektes erhalten Sie kostenfrei eine Festpreis- und Bauzeitgarantie. Sicherheit von Anfang an!
Das Traditionsunternehmen Heinz von Heiden Massivhäuser ist seit 1931 tätig und baut in allen sechzehn Bundesländern.
Ausstattungsmöglichkeiten für die Stadtvilla Arcus 150
Unsere Bauweise
Bau-Beschreibung für die Stadtvilla Arcus 150
Schlüsselfertige Herstellung der abgebildeten und beschriebenen Stadtvilla mit Bodenbelägen auf Ihrem Grundstück.
Herstellung des tragfähigen Unterbaus für das Haus. Die Stahlbetonbodenplatte ist wasserundurchlässig und wird auf gedämmten Fundamenten gelagert.
Die Außenwände bestehen aus monolithischem Mauerwerk, das gedämmt ist und einen optimalen Schallschutz gegen Außenlärm bietet. Der Angebotspreis enthält einen farbigen Edelaußenputz und 4 Stück farblich abgesetzten Gebäudeecken. Glatt verputzte massive Innenwände im EG + OG, wodurch die Malerarbeiten gut vorbereitet sind. Die massiven Innenwände bieten den Bewohnern einen sehr guten Schallschutz von Raum zu Raum.
Der Dachstuhl besteht aus technisch getrockneten Nadelholz. Er erhält eine dicke Energiespardämmung aus Mineralwolle. Braas-Dachsteine, in vielen Farben und Ausführungen, schützen Ihr Haus.
Die Stahlbetondecke über dem Erdgeschoss sorgt für einen hervorragenden Trittschallschutz im Gebäude. Gedämmte Fußböden im Erd- und Obergeschoss mit Fußbodenheizung.
Es werden RAL-gütegeprüfte weiße Kunststofffenster mit 3-facher Wärmeschutzverglasung eingebaut. Die moderne Hauseingangstür hat eine Mehrfachverriegelung. Alle Fenster erhalten elektrische Alu-Rollläden, wodurch per Knopfdruck Hitze-, Kälte- und Sichtschutz einstellbar sind.
Unsere Fachfirmen führen die komplette Sanitär-, Heizungs- und Elektroinstallation im Haus aus.
Wärmepumpe + Fußbodenheizung + Eigenstromanlage. Komfortpaket Elektroausstattung.
Damit die beim Bewohnen des Hauses erzeugte Feuchtigkeit dauerhaft und zuverlässig nach Außen abgeleitet wird, erhält Ihr Haus eine mehrstufig regelbare zentrale Wohnraumlüftung, die geräuschlos und zuverlässig für immer frische Luft in allen Räumen des Hauses sorgt und Ihr Wohneigentum vor Feuchteschäden schützt.
Moderne, weiße Innentüren und eine moderne Holz-Innentreppe sind kalkuliert. Eine große Anzahl anderer Innentüren und Treppenarten stehen Ihnen zur Auswahl zur Verfügung.
Das Bad und das Gäste-WC wird mit Schöner Wohnen Fliesen (Wand- und Bodenfliesen) ausgestattet und erhält eine bodengleiche Dusche, Badewanne, Waschtisch, WC, Handtuchheizkörper. Wählen Sie aus einem großen Angebot an Sanitärausstattungen und Fliesen aus.
Die malermäßige Behandlung der inneren Wand- u. Deckenflächen und Verlegung der Bodenbeläge ist in Eigenleistung oder per Zusatzauftrag vorzunehmen.
Das ist unser persönlicher Service für Ihr Bauprojekt:
Seit 1995 begleiten wir unsere Baukundschaft bei der baurechtlichen Auswahl und individuellen Anpassung des Hauses. Wir schauen uns Ihren Bauplatz wegen seiner Erschließung und Beschaffenheit an. Wir unterstützen Sie bei der Ermittlung der Gesamtkosten Ihres Bauprojektes und wir stehen Ihnen mit Rat und Tat bis zur Fertigstellung Ihres Traumhauses zur Seite.
Unsere langjährigen Kooperationspartner bieten Ihnen bei Bedarf den Aufbau von Garagen, Carports, Pflasterung von Flächen, Baumfällung, Abriss- und Entsorgung, Verlegung von Rollrasen, Einzäunung des Grundstücks usw. an.
Dipl.-Bauing. Peter Ring & Katrin Reineck freuen sich auf Ihren Anruf oder eine Mail.
info@hausvertrieb-bayern.de
Tel. 08246 – 96 94 220 oder 01522 – 548 1616
Optionen für die Stadtvilla Arcus 150
Wasserdichter Betonkeller in gewünschter Nutzungsart. Bodenbeläge in Eigenleistung erbringen. Eine große Auswahl an Ausstattungen und Sanitärartikeln stehen zur Verfügung. Erweiterung der Photovoltaikanlage.
10.01.2026












































































