Dieses Einfamilienhaus mit 10 Modulen Eigenstromanlage bietet einer Familie mit 3 Kindern ein gemütliches Heim und wird durch Heinz von Heiden Massivhäuser auf Ihrem Bauplatz errichtet.

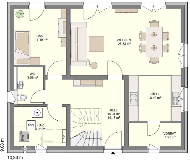
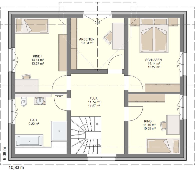
147 qm DIN-Wohnfläche. 6 Zimmer, Küche, Bad, Gäste-WC, Diele, Flur, Technik- u. Abstellraum.
Außenmaße = 10,83 m x 9,08 m.
Der Herstellungspreis beträgt: 395.600 € inkl. 19 % MwSt.
Der Herstellungspreis enthält auch diese Leistungen: Alle Architektenleistungen, Bau- und Entwässerungsantrag, Bodengutachten, Bauleitung, Baustellen-WC, Blower-Door-Test, statische Berechnung des Hauses, Arbeits- und Gesundheitsschutzdokumentation. Alle Versicherungen: Feuerversicherung. Bauherrenhaftpflicht- und Bauwesenversicherung. Baufertigstellungsversicherung.
Für die Verwirklichung Ihres Bauprojektes erhalten Sie kostenfrei eine Festpreis- und Bauzeitgarantie. Sicherheit von Anfang an!
Das Traditionsunternehmen Heinz von Heiden Massivhäuser ist seit 1931 tätig und baut in allen sechzehn Bundesländern.
Ausstattungsmöglichkeiten für das Einfamilienhaus Calvus 620
Unsere Bauweise
Bau-Beschreibung für das Einfamilienhaus Calvus 620
Das abgebildete und beschriebene Einfamilienhaus Calvus 620 mit großer Eigenstromanlage wird durch Heinz von Heiden Massivhäuser auf Ihrem Grundstück errichtet.
Herstellung des tragfähigen Unterbaus für das Haus. Die Stahlbetonbodenplatte ist wasserundurchlässig und wird auf gedämmten Fundamenten gelagert.
Die Außenwände bestehen aus monolithischem Mauerwerk, das gedämmt ist und einen hervorragenden Schallschutz gegen Außenlärm bietet. Die Fassade erhält einen Edelaußenputz, bei dem Schmutz kaum Chancen hat und dieser Putz ist stark wasserabweisend. Glatt verputzte massive Innenwände im EG + OG, wodurch die Malerarbeiten gut vorbereitet sind. Die massiven Innenwände bieten den Bewohnern einen sehr guten Schallschutz von Raum zu Raum.
25° Satteldachkonstruktion aus Qualitätsholz und mit Braas-Dachsteinen eingedeckt.
Unsere Fachfirmen führen die komplette Sanitär-, Heizungs- und Elektroinstallation im Haus aus.
Wärmepumpe + Fußbodenheizung + Eigenstromanlage + Komfortpaket Elektroausstattung.
Gedämmte Fußböden im Erd- und Dachgeschoss mit Fußbodenheizung.
Farbige Kunststofffenster mit 3-facher Wärmeschutzverglasung. Alle Fenster erhalten elektrische Alu-Rollläden, wodurch per Knopfdruck Hitze-, Kälte- und Sichtschutz einstellbar sind. Farbige Hauseingangstür.
Beheizung und Warmwasserversorgung mittels Luft-Wasser-Wärmepumpe. Damit die beim Bewohnen des Hauses erzeugte Feuchtigkeit dauerhaft und zuverlässig nach Außen abgeleitet wird, erhält Ihr Haus eine mehrstufig regelbare zentrale Wohnraumlüftung, die geräuschlos und zuverlässig für immer frische Luft in allen Räumen des Hauses sorgt und Ihr Wohneigentum vor Feuchteschäden schützt.
Das Bad und Gäste-WC sind gefliest und ausgestattet mit bodengleicher Dusche, Badewanne, Waschtisch, WC, Handtuchheizkörper. Für Ihr Haus steht Ihnen eine große Auswahl an Sanitärausstattungen zur Verfügung.
Weißlack Holzinnentüren und eine moderne Holzinnentreppe sind kalkuliert.
Die malermäßige Behandlung der inneren Wand- u. Deckenflächen und Verlegung der Bodenbeläge ist in Eigenleistung oder per Zusatzauftrag vorzunehmen.
Das ist unser persönlicher Service für Ihr Bauprojekt:
Seit 1995 begleiten wir unsere Baukundschaft bei der Auswahl eines Heinz von Heiden Massivhauses, fertigen für Sie Ihren Wunschgrundriss an und fügen die von Ihnen gewünschten architektonischen Zusätze (Fassadenfarbe, Erker, Zwerchgiebel, Gaube, Balkon, Dachfenster usw.) dem zeichnerischen Hausentwurf hinzu.
Nachdem Ihr Wunschhaus entwickelt ist, unterstützen wir Sie bei der Ermittlung der Gesamtkosten Ihres Bauprojektes. Wir begleiten die Fertigstellung Ihres Traumhauses bis zu Ihrem Einzug und stehen Ihnen jederzeit mit Rat und Tat zur Seite.
Unsere langjährigen Kooperationspartner bieten Ihnen bei Bedarf den Aufbau von Garagen, Carports, Pflasterung von Flächen, Baumfällung, Abriss- und Entsorgung, Verlegung von Rollrasen, Einzäunung des Grundstücks usw. an.
Hat dieses Haus Ihr Interesse geweckt und wünschen Sie Informationen darüber?
Schreiben Sie uns oder rufen Sie uns bitte an.
info@hausvertrieb-bayern.de – Tel. 08246 – 96 94 220 / 01522 – 548 1616
Dipl.-Bauing. Peter Ring & Katrin Reineck
Optionen für das Einfamilienhaus Calvus 620
Wasserdichter Betonkeller in gewünschter Nutzungsart. Vergrößerung oder Verkleinerung des Hauses oder Änderung der Raumaufteilung. Eine große Auswahl an Ausstattungen und Sanitärartikeln steht zur Verfügung.
06.11.2025













































































